Neuss entwickelt

Alexianer Quartier / Augustinus-Park

Illustration eines Backsteingebäudes mit der Beschriftung „Bäckerei“.
F1

Auf dem ehemaligen Gelände des St. Alexius-Krankenhauses im Augustinusviertel wird am Rande der Neusser Innenstadt ein neuer Stadtteil entstehen. Rund um den historischen Kern des Geländes mit Klostergebäude, Klosterkirche und Klostergarten mit Friedhof wird das insgesamt ca. 15 ha große Areal durch die Neusser Bauverein GmbH aktuell zu einem neuen attraktiven Wohnstandort mit insgesamt ca. 600 Wohneinheiten, zwei Kindergärten, einem Cafe, einem Nachbarschaftstreff und einem Gesundheitszentrum entwickelt.

Illustration einer Luftaufnahme eines hellen Wohnblocks mit begrünten Dachterrassen.
C1


Geplant ist ein Wohnungsmix aus freifinanzierten und geförderten Miet- und Eigentumswohnungen sowie Einfamilienhäusern.
Der besondere Reiz des Standorts liegt in der direkten Nachbarschaft von zentralem, städtischen Freiraum und dem direkten Bezug zu den umgebenden Grünräumen entlang der Erft als Naherholungsgebiet.
Der ehemalige Klosterpark ist das prägende Grünelement im Inneren des Quartiers.

Aus dem 2012 durchgeführten städtebaulichen Wettbewerb gingen Wick und Partner Architekten und Stadtplaner aus Stuttgart als erster Preisträger hervor. Bei mehreren Baufeldern wurden im Rahmen vertiefender Wettbewerbe die Baukubaturen weiter qualifiziert.

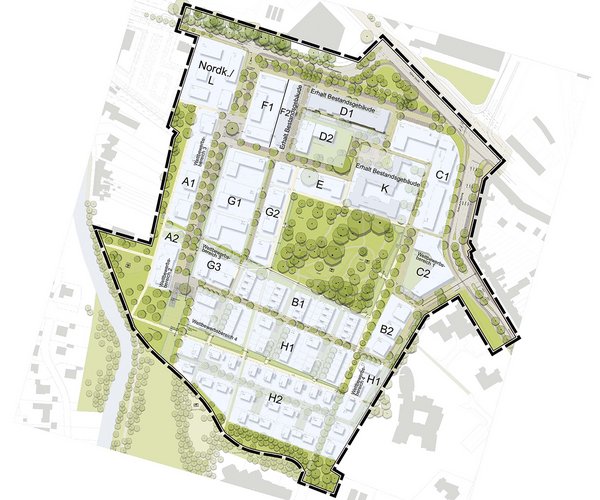
Vereinfachte Planzeichnung des Quartiers mit den verschiedenen Baufeldern.

Unter anderem stand die Kostensenkung im Eigentumserwerb für unterschiedliche Gebäudetypologien bei einer möglichst hohen architektonischen Qualität im Vordergrund. Zwei Baufelder (L und D) sind bereits realisiert und bilden den Auftakt an der Nordkanalallee und am Alexianerplatz. Bei Baufeld D handelt es sich um die Umnutzung eines ehemaligen Krankenhauses in ein Gesundheitszentrum mit verschiedenen Arztpraxen sowie eine Kindertagesstätte ergänzt mit Wohnungen in den Obergeschossen. In Baufeld F ist die Umnutzung der ehemaligen Wirtschaftsgebäude in ein Quartierszentrum geplant. Der Bau des Baufelds C1 startet voraussichtlich Mitte 2025.